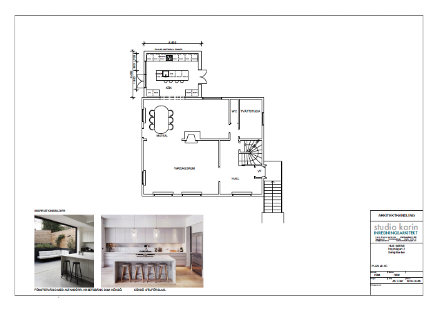
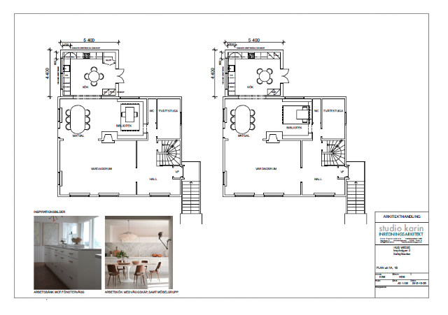
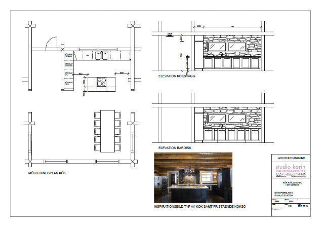
Vi har ritat många kök åt privatkunder. Vi förvissar oss om era önskemål, analyserar den befintliga planen och förutsättningarna - och designar sedan ert önskekök. Kök i våningen i stan, i förortsvillan, lantligt eller i fjällstugan. I designprocessen ser vi över planlayout, möblering och belysningspunkter. På elevationerna (väggritningarna) färdigställer vi designen med val av luckbredder och höjdmått så att köket utreds tredimensionellt och blir både funktionellt och vackert att titta på.
Det är en omfattande designprocess där vi tillsätter all vår kunskap om arkitektoniska standardmått, tillsammans med en upparbetad erfarenhet av vad som blir snyggt och funktionellt, hänsyn tas till husets stil och naturligtvis lyssnar vi på era personliga önskemål.
KÖKSDESIGN
KÖKSDESIGN
KÖKSDESIGN








